Verhuurd

Dalsteindreef 160 Amsterdam

Omschrijving

Let op!! Dit appartement is ongemeubileerd!!

In dit verzorgde appartementencomplex aan de Dalsteindreef mogen wij een ruim 3-kamer appartement mét vrij uitzicht over groen te huur aanbieden, gelegen op de derde verdieping.
Het appartement is een paar jaar geleden gerenoveerd.
Met een lichte woonkamer, riante keuken, nette moderne badkamer en twee ruime slaapkamers zal je hier niets tekort komen. Het woningbrede balkon, gelegen op het zuidoosten met vrij uitzicht over de binnentuin maakt de woning compleet.

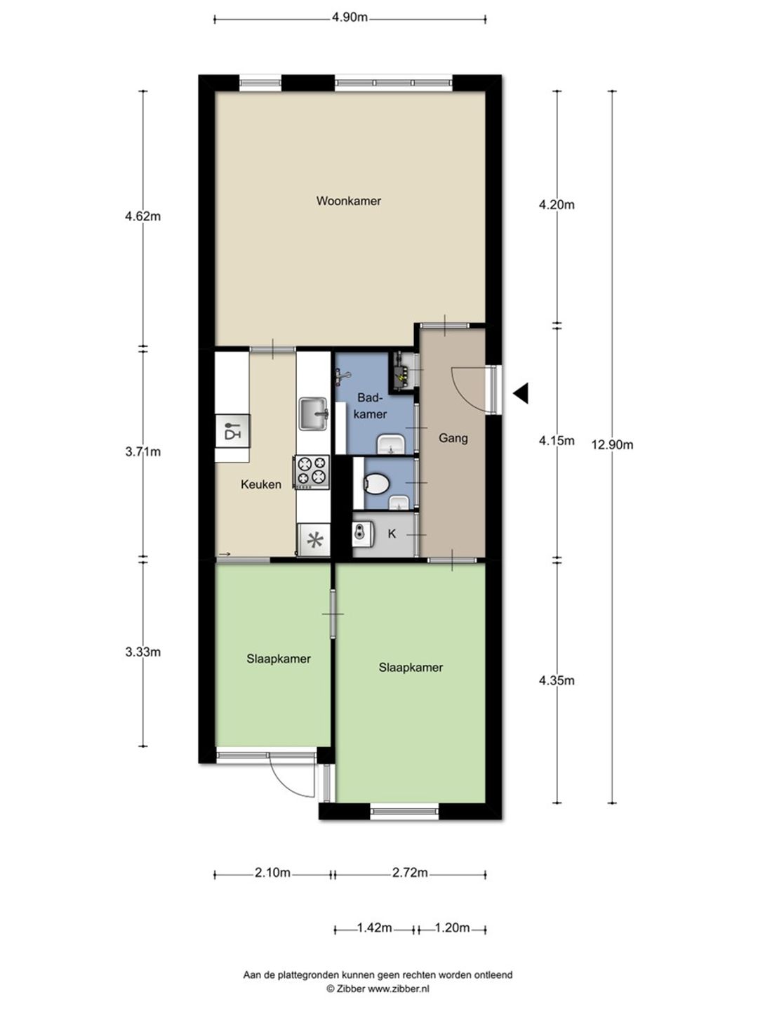
Indeling

Entree
Binnenkomst in de centrale entree, waar zich het intercomsysteem bevindt. In de onderbouw tref je eveneens de eigen berging die genoeg ruimte biedt voor het stallen van fietsen en andere spullen. Via de trap bereik je de derde verdieping, waar het appartement is gelegen.

Woonkamer
Wanneer je deze woonkamer instapt zal direct opvallen hoe aangenaam licht het hier is. De ramen en balkondeur zorgen voor deze fraaie lichtinval. Van de lichte woonkamer met mooi gelegde laminaatvloer en de strakke witte muren kun je eenvoudig een gezellige huiskamer van maken.

Keuken
De keuken is gelegen in het midden van het appartement en is praktisch ingericht. De keuken is voorzien van een keukenblok met diverse inbouwapparatuur zoals: een oven, 4-pits gasfornuis met een oven, een vaatwasser en er staat een losse koelkast.

Slaapkamers
Het appartement beschikt over 1 ruime slaapkamer die heerlijk licht is door het grote raampartij, en een wat kleinere slaapkamer, beide gelegen aan de voorzijde van het appartement.

Badkamer
De badkamer is vanuit de hal te bereiken en is netjes ingericht en van alle gemakken voorzien. Zo vind je hier een inloopdouche, wastafel, designradiator en ook de aansluiting voor witgoed. Het toilet is separaat en heeft een fonteintje.

Balkon
Het ruime balkon is gelegen op het zuid oosten en heeft de gehele breedte van het appartement, en is hierdoor behoorlijk ruim te noemen. Een eettafel met stoelen past hier prima op.

Locatie
Het appartementencomplex ligt centraal ten opzichte van diverse voorzieningen en faciliteiten. In de nabije omgeving het populaire Arena Park, Arena Woonmall, Pathé bioscoop, Heineken Music Hall, Arena Boulevard en winkelcentrum Amsterdamse Poort voor de dagelijkse boodschappen. Daarnaast op korte afstand het groene recreatiegebied Ouderkerkerplas, diverse basis- en middelbare scholen en het Academisch Medisch Centrum (AMC). De bereikbaarheid is uitstekend met in de nabije omgeving diverse openbaar vervoersvoorzieningen. Het metrostation Venserpolder ligt op 150 meter lopen en station Duivendrecht ligt op 500 meter (bus, tram, trein en metro) en uitvalswegen (A1, A2, A9 en A10). Als bewoner krijg je gemakkelijk een parkeervergunning die € 50,- per jaar kost.
De woning wordt ongemeubileerd verhuurd voor € 1650,– per maand exclusief gas, water, elektriciteit en internet en exclusief lokale belastingen. De plattegrond is een indicatie hoe de woning eruit ziet. De werkelijkheid is net iets anders. Ook kan de maatvoering licht verschillen. De foto’s zijn wellicht slechter dan hoe het appartement er echt uit ziet

Deze woning is beschikbaar vanaf 1 september 2022.

—————–*****————-****—————-*****————-*****—————-*****————*****
PLease be aware that this apartment is unfurnished!!!

In this well maintained apartment complex on the Dalsteindreef we can offer a spacious 3-room apartment with an unobstructed view over green, located on the third floor.
The apartment was renovated not more than a few years ago.
With a bright living room, spacious kitchen, clean modern bathroom and two spacious bedrooms, you will not be short of anything here. The house-wide balcony, located on the southeast with an unobstructed view over the courtyard, completes the home.

Layout

Entrance
Entry into the central entrance, where the intercom system is located. In the basement you will also find the private storage room that offers enough space for storing bicycles and other items. Via the stairs you reach the third floor, where the apartment is located.

Living room
When you enter this living room you will immediately notice how pleasant light it is here. The windows and balcony door ensure this beautiful light. From the bright living room with beautifully laid laminate flooring and the sleek white walls you can easily create a cozy living room.

kitchen
The kitchen is located in the middle of the apartment and is practically furnished. The kitchen is equipped with a kitchen with appliances such as: an oven, 4-burner stove with an oven, a dishwasher and a separate fridge.

Bedrooms
The apartment has 1 spacious bedroom that is wonderfully light through the large windows, and a smaller bedroom, both located at the front of the apartment.

Bathroom
The bathroom is accessible from the hall and is nicely furnished and fully equipped. You will find a walk-in shower, sink, design radiator and the connection for white goods. The toilet is separate and has a fountain.

Balcony
The spacious balcony is located on the south east and has the entire width of the apartment, and is therefore pretty spacious. A dining table with chairs fits well here.

Location
The apartment complex is centrally located to various facilities and facilities. In the vicinity the popular Arena Park, Arena Woonmall, Pathé cinema, Heineken Music Hall, Arena Boulevard and shopping center Amsterdamse Poort for daily shopping. In addition, the green recreational area Ouderkerkerplas, various primary and secondary schools and the Academic Medical Center (AMC) are within a short distance. The accessibility is excellent with various public transport facilities in the vicinity. The metro station Venserpolder is 150 meters walk and Duivendrecht station is 500 meters (bus, tram, train and metro) and roads (A1, A2, A9 and A10). As a resident you easily get a parking permit that costs € 50, – per year.
The house is rented unfurnished for € 1650, – per month excluding gas, water, electricity and internet and excluding local taxes.

The floor plan is an indication of what the property looks like. The reality is slightly different. The dimensions may also differ slightly. The pictures are not good but in reallity the apartment looks nicer.

The apartment is available from the first of September 2022.

Lees de volledige omschrijving

Kenmerken

Algemeen

Huurovereenkomst
Tijdelijke verhuur
Aangeboden sinds
6+ maanden
Status
Verhuurd
Aanvaarding
Beschikbaar per 01-09-2022
Soort woonhuis
Appartement, bovenwoning
Soort bouw
Bestaande bouw
Bouwjaar
1984
Ligging
Aan rustige weg, in woonwijk, vrij uitzicht

Oppervlakten en inhoud

Wonen
65 m²
Gebouwgebonden Buitenruimte
8 m²
Externe bergruimte
4 m²
Inhoud
170 m³

Indeling

Aantal kamers
3 kamers (2 slaapkamers)
Aantal badkamers
1 badkamer
Badkamervoorzieningen
Douche, wastafel
Aantal woonlagen
1

Energie

Isolatie
Dubbel glas
Verwarming
Cv ketel
Warm water
Cv ketel

Parkeergelegenheid

Soort parkeergelegenheid
Openbaar parkeren
Bekijk alle kenmerken

Overige media