Verhuurd

Daniel Defoelaan 40 Amsterdam

Omschrijving

Nu te huur!! Goed ingedeeld 3 kamer appartement. Een royaal appartement in een goed onderhouden complex, op een goede locatie in de Venserpolder die uitstekend bereikbaar is.

Indeling:
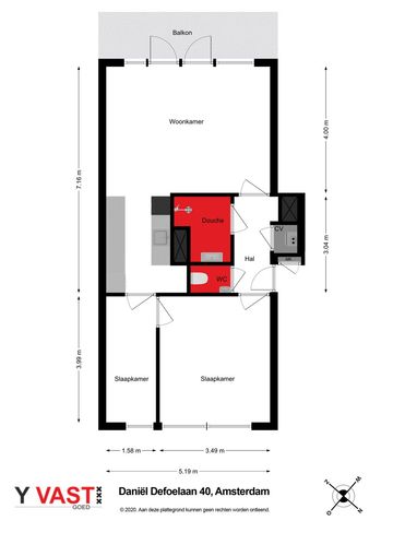
Begane grond: Centrale entree, brievenbussen, berging en trappenhuis naar 1e etage :Centrale hal, galerij en entree appartement.

Via de gemeenschappelijke entree met brievenbussen en bellentableau bereikt u middels het trappenhuis de entree van dit appartement. Eerste verdieping, entree, hal/gang, een ruime slaapkamer en een kleine slaapkamer , separaat toilet met fontein, badkamer v.v. douche, wastafel en wasmachineaansluiting, lichte ruime woonkamer met semi-open keuken.

Woonkamer
De woonkamer is licht vanwege de grote raampartijen en de deuren waarvandaan u ook toegang heeft tot het balkon!. Twee slaapkamers die zich aan de zonzijde bevinden.

Keuken
Via de woonkamer loopt u de open keuken in. Ruime keuken voorzien van een oven, gasfornuis en afzuigkap.

Badkamer
Eenvoudige , badkamer, voorzien van douche, wastafel met wastafelmeubel.

Omgeving en bereikbaarheid:
Deze woning is gelegen in de Venserpolder in Amsterdam-Zuidoost, nabij de Johan Cruijff Arena, Arene Boulevard, winkelcentrum de Amsterdamse Poort en onder andere ook de Ziggo Dome. In de nabijheid bevinden zich diverse winkels voor de dagelijkse boodschappen, (basis)scholen en een perfecte verbinding met het openbaar vervoer met de metrohalte aan het einde van de straat. De uitvalswegen met o.a. de Ring A-10 wordt snel bereikt en in dit gebied geldt nog gratis parkeren!!
Bijzonderheden:

– Woonoppervlakte 59 m2
– Inhoud 183 m3;
– 2 minuten loopafstand van metrohalte Venserpolder
– Actieve en gezonde VvE
– Gebouw gebonden buitenruimte ca 8 m² (balkon)
– Voldoende parkeergelegenheid voor de deur
– Per direct beschikbaar

————*****————-*****————*****———-*****————–*****————-******————

Now for rent !! Well laid out 3 room apartment. A spacious apartment in a well-maintained complex, in a good location in the Venserpolder that is easily accessible.

Layout:
Ground floor: Central entrance, mailboxes, storage room and staircase to 1st floor: Central hall, gallery and entrance apartment.

Via the communal entrance with mailboxes and doorbells you reach the entrance of this apartment through the stairwell. First floor, entrance, hall / corridor, a spacious bedroom and a small bedroom, separate toilet with washbasin, bathroom with shower, sink and washing machine connection, bright spacious living room with semi-open kitchen.

Living room
The living room is light because of the large windows and the doors from which you also have access to the balcony! Two bedrooms located on the sunny side.

kitchen
You enter the open kitchen through the living room. Spacious kitchen with an oven, stove and extractor.

Bathroom
Simple bathroom with shower, washbasin with washbasin.

Environment and accessibility:
This house is located in the Venserpolder in Amsterdam Southeast, near the Johan Cruijff Arena, Arene Boulevard, the Amsterdamse Poort shopping center and also the Ziggo Dome. In the vicinity there are various shops for daily shopping, (primary) schools and a perfect connection to public transport with the metro stop at the end of the street. The roads including the Ring A-10 are quickly reached and in this area there is still free parking !!
Particularities:

– Living area 59 m2
– Capacity 183 m3;
– 2 minutes walking distance from metro stop Venserpolder
– Active and healthy VvE
– Building-bound outdoor space approx. 8 m² (balcony)
– Sufficient parking space in front of the door
– Available immediately

Lees de volledige omschrijving

Kenmerken

Algemeen

Waarborgsom
€ 2.000 eenmalig
Huurovereenkomst
Onbepaalde tijd
Aangeboden sinds
6+ maanden
Status
Verhuurd
Aanvaarding
Per direct beschikbaar
Soort woonhuis
Appartement, bovenwoning
Soort bouw
Bestaande bouw
Bouwjaar
1984
Ligging
Aan rustige weg, in woonwijk

Oppervlakten en inhoud

Wonen
59 m²
Gebouwgebonden Buitenruimte
8 m²
Externe bergruimte
6 m²
Inhoud
183 m³

Indeling

Aantal kamers
3 kamers (2 slaapkamers)
Aantal badkamers
1 badkamer
Badkamervoorzieningen
Douche, wasmachineaansluiting, wastafel
Aantal woonlagen
1

Energie

Energielabel
B
Verwarming
Cv ketel
Warm water
Cv ketel

Kadastrale gegevens

Perceelnaam
Weesperkarspel A 1776
Eigendomssituatie
Eigendom belast met erfpacht
Perceel
WPK02-A-1776

Bergruimte

Schuur/berging
Box

Parkeergelegenheid

Soort parkeergelegenheid
Openbaar parkeren
Bekijk alle kenmerken