Verkocht

Leonard Bernsteinstraat 60 B Amsterdam

Omschrijving

Modern en luxe ingericht 3 kamer appartement van 86 m2 met riant terras van 28 m2 in het mooiste gebouw van de Zuidas!

De Zuidas in Amsterdam ontwikkelt zich in hoog tempo tot een hoogwaardig gemengd stedelijk gebied. De Zuidas is nu een mix bestaande uit kantoren, luxe appartementencomplexen en een variëteit aan horeca, winkels en andere recreatie. Overdag bevolkt door kantoorpubliek, na werktijd levendig door bewoners en de diversiteit aan restaurants en cafés. Woontoren Intermezzo geeft de stadse dynamiek een nieuwe impuls met 175 royale stadsappartementen, die Intermezzo de onderscheidende allure geven passend bij de metropolitaanse woonkwaliteit van de Zuidas. Het gebouw straalt met chique materialen in alles elegantie en comfort uit.
Het lichte en in het oog springende gebouw met allure in Amsterdam Zuid telt 23 verdiepingen en doet New Yorks aan. Uw fiets of scooter kan in de gemeenschappelijke fietsenstalling geplaatst worden. De parkeergarage bevindt zich onder het gebouw en op de begane grond zit een Albert Heijn supermarkt.

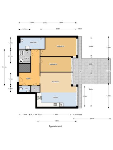
Het strak afgewerkte 3 kamer appartement van circa 86 vierkante meter bevindt zich op de eerste verdieping aan de Leonard Bernsteinstraat. De gehele woning is voorzien van een strakke witte gietvloer met vloerverwarming, en het heeft overal een plafondhoogte van 2,90 m. De open moderne keuken is van alle gemakken en luxe inbouwapparatuur voorzien. Beide slaapkamers hebben een goed formaat, de badkamer heeft een wastafel, inloopdouche en zwevend toilet. Eveneens is er nog een tweede zwevend toilet met fonteintje voor de gasten. In de inpandige berging bevindt zich de wasmachineaansluiting, warmte/koelpomp en wtw-installatie. Vanuit alle kamers kunt u door de openslaande deuren het riante terras op stappen, gelegen op het zuidwesten. Op de begane grond is nog een berging waar je de overige spullen kan stallen. Beneden in de kelder van het gebouw bevindt zich de parkeergarage met een eigen parkeerplek behorende bij dit appartement. Ook is er in de kelder een ruimte waar je je afval kunt storten, het liefste gescheiden.

De buurt:
De tijd dat de Zuidas louter werd gezien als zakencentrum is voorbij. De Zuidas heeft zich ontwikkeld tot een levendig gebied met veelzijdigheid én, uniek in Amsterdam, ongekende bereikbaarheid. Het Beatrixpark, Amstelpark en het Amsterdamse bos liggen om de hoek, net zoals de ringweg A10.
Op station Amsterdam Zuid heeft u de trein, tram, metro en bus ter beschikking en de reistijd naar Schiphol is slechts 6 minuten. Met de Noord/Zuidlijn is het centrum in 5 minuten bereikbaar en in 14 minuten zelfs Amsterdam Noord.

Bijzonderheden:
– Zeer ruime 3 kamer woning van 86 m2.
– Ruim terras van 28 m2
– De gehele woning heeft een plafondhoogte van 2,90 meter
– Perfecte locatie op de Zuidas.
– Er kan een parkeerplaats in de kelder van het gebouw los bijgekocht worden voor € 80.000,-
– Tijdsvak Erfpacht loopt tot 2064, jaarlijkse canon van circa € 1460,-
– Nieuw appartement, opgeleverd in oktober 2017.
– 2 slaapkamers
– Lift aanwezig
– Energielabel A;
– Huismeester aanwezig;

————————–********———————————————-********——————————-

Modern and luxuriously furnished 3 room apartment of 86 m2 with spacious terrace of 28 m2 in the most beautiful building of the Zuidas!

The Zuidas in Amsterdam is developing rapidly into a high-quality mixed urban area. The Zuidas is now a mix of offices, luxury apartment complexes and a variety of restaurants, shops and other recreation. During the day populated by office audiences, after working hours lively by residents and the diversity of restaurants and cafes. Residential tower Intermezzo gives the urban dynamics a new impetus with 175 spacious city apartments, which give Intermezzo the distinctive allure appropriate to the metropolitan quality of the Zuidas. The building exudes elegance and comfort with chic materials.
The light and eye-catching building with allure in Amsterdam South has 23 floors and serves New York. Your bicycle or scooter can be placed in the communal bicycle shed. The parking garage is located under the building and there is an Albert Heijn supermarket on the ground floor.

The tightly finished 3-room apartment of approximately 86 square meters is located on the first floor at the Leonard Bernsteinstraat. The entire house has a sleek white cast floor with underfloor heating, and it has a ceiling height of 2.90 m. The open modern kitchen is equipped with all conveniences and luxury appliances. Both bedrooms have a good size, the bathroom has a sink, walk-in shower and toilet. There is also a second floating toilet with fountain for the guests. In the storage room is the washing machine connection, heat / cooling pump and wtw installation. From all rooms you can step through the patio doors onto the spacious terrace, located on the southwest. On the ground floor is a storage room where you can store the other stuff. Downstairs in the basement of the building is the parking garage with a private parking space belonging to this apartment. There is also a room in the basement where you can deposit your waste, preferably separated.

The neighbourhood:
The time that the Zuidas was merely seen as a business center is over. The Zuidas has developed into a lively area with versatility and, unique in Amsterdam, unprecedented accessibility. The Beatrixpark, Amstelpark and the Amsterdam forest are just around the corner, just like the ring road A10.
At Amsterdam Zuid station you have the train, tram, metro and bus available and the journey time to Amsterdam Airport Schiphol is only 6 minutes. With the North / South line the city center can be reached in 5 minutes and in 14 minutes even Amsterdam North.

Particularities:
– Very spacious 3 room apartment of 86 m2.
– Spacious terrace of 28 m2
– The entire house has a ceiling height of 2.90 meters
– Perfect location on the Zuidas
– A parking space in the basement of the building can be purchased separately for € 80.000,–
– New apartment, delivered in October 2017.
– Period Leasehold runs until 2064, annual ground rent of approximately € 1460,-
– 2 bedrooms
– Elevator present
– Energy label A;
– Professional VVE management through the New World.
– Caretaker present;
– Available from 1 February 2020.

Lees de volledige omschrijving

Kenmerken

Algemeen

Aangeboden sinds
6+ maanden
Status
Verkocht
Aanvaarding
In overleg
Soort woonhuis
Appartement, bovenwoning
Soort bouw
Bestaande bouw
Bouwjaar
2017
Ligging
Aan rustige weg, in woonwijk

Oppervlakten en inhoud

Wonen
86 m²
Gebouwgebonden Buitenruimte
28 m²
Externe bergruimte
5 m²
Inhoud
286 m³

Indeling

Aantal kamers
3 kamers (2 slaapkamers)
Aantal badkamers
1 badkamer
Badkamervoorzieningen
Douche, dubbele wastafel, toilet
Aantal woonlagen
1
Voorzieningen
Lift, mechanische ventilatie, schuifpui

Energie

Energielabel
A
Isolatie
Volledig geisoleerd
Verwarming
Warmte terugwininstallatie
Warm water
Centrale voorziening, stadsverwarming

Kadastrale gegevens

Perceelnaam
Amsterdam AK 4566
Eigendomssituatie
Eigendom belast met erfpacht
Perceel
ASD30-AK-4566

Buitenruimte

Tuin
Achtertuin
Achtertuin
24 m²
Ligging tuin
Zuidwest

Bergruimte

Schuur/berging
Box

Parkeergelegenheid

Soort parkeergelegenheid
Parkeergarage
Bekijk alle kenmerken