Verkocht

Lepelaar 12 Ouderkerk aan de Amstel

Omschrijving

In een kindvriendelijke wijk de Benningh in het charmante Ouderkerk aan de Amstel gelegen ruime 5 KAMER EENGEZINSWONING met tuin gelegen op het westen. De woning is goed onderhouden en is nog rianter gemaakt door middel van een dakopbouw.
De woning heeft een woonoppervlakte van circa 124 m² en een vrijstaande berging van 7 m2, perceeloppervlakte 125 m², bouwjaar 1996, oplevering in overleg.

Indeling
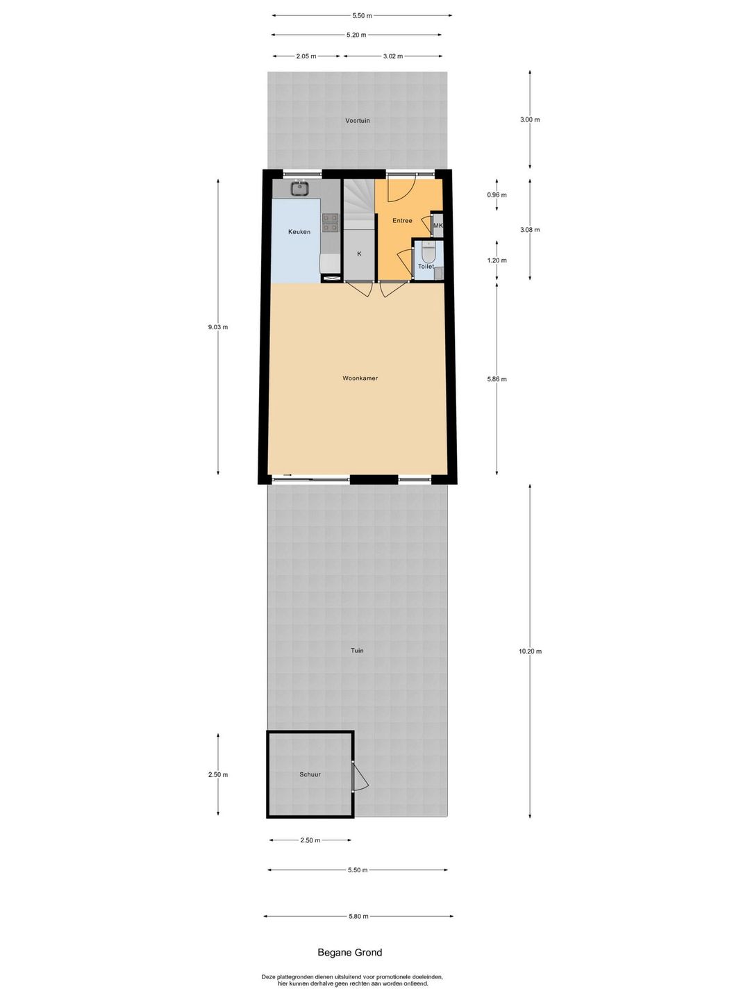
Begane grond:
Na de voortuin open je de voordeur, hal met ruimte voor de garderobe, toiletruimte met fonteintje, meterkast en de trap naar de 1ste verdieping. Aan het einde van de hal is de deur naar de woonkamer. De woonkamer is gelegen aan de achterzijde met uitzicht op de tuin. De open keuken bevindt zich aan de voorkant van de woning. De open keuken is voorzien van diverse inbouwapparatuur zoals een 5 pits gaskookplaat, oven/ magnetron, vaatwasmachine en een spoelbak. De woonkamer heeft een schuifpui die toegang geeft tot de op het westen gelegen achtertuin. De achterzijde van de woning is voorzien van een elektrisch zonnescherm.

De achtertuin is circa 9 meter diep en beschikt over een vrijstaande berging (7m2). De achtertuin heeft een gunstige ligging op het westen en kent een achterom.

Eerste verdieping:
Op de 1ste verdieping bevinden zich drie ruime (slaap)kamers; 2 (slaap) kamers aan de achterzijde alsmede een slaapkamer aan de voorzijde van de woning. Tevens nog een ruimte inloopkast toegankelijk vanaf de overloop met hierin de cv ketel en de wasmachine.

De badkamer bevindt zich in het midden van de verdieping en beschikt over een ligbad met douche, wastafelmeubel en een tweede toilet.

Tweede verdieping:
Via de vaste trap bereikt u de 2e verdieping. De tweede verdieping beschikt over en zeer riante slaapkamer en een badkamer met douche, toilet en dubbele wastafel.
Ligging:
De wijk Benningh is ontwikkeld in 1996/1997 en ligt aan het riviertje de Bullewijk; deze woning behoort tot de eerste fase van deze nieuwbouwwijk. De ligging ten opzichte van de dorpskern en overige winkels op het Sluisplein is gunstig door ontsluiting via tweetal bruggen.
Ook openbaar vervoer is op loop- of fietsafstand (o.a. richting Schiphol, Haarlem, Utrecht, Amsterdam) en binnen enkele autominuten ben je op de uitvalswegen naar ring A-10 en A-2. De stad is binnen handbereik en met de gewone stadsfiets ben je in 20 minuten via de mooie route langs de Amstel in Amsterdam: in 10 minuten ben je met de auto in Amsterdam en in nog geen 10 minuten in het stadshart van Amstelveen. Ook Schiphol is niet verder dan een halfuurtje en met openbaar vervoer zelfs maar ca. 25 minuten (Zuidtangent).

Ouderkerk biedt alles wat men kan wensen: scholen, een diversiteit aan winkels, café’s
en restaurants in alle (prijs)klassen: van een goede eenvoudige kaart tot een sterrenrestaurant en alles wat daar tussen zit. Voor de sportliefhebbers zijn er mogelijkheden zowel binnen als buiten: diverse sportverenigingen, sportschool, voetbalvelden, tennisbanen, zwembad en niet te vergeten de populaire loop- en fietsroute De Rondehoep. Ook recreëren aan de Ouderkerkplas of, iets verder, de Botshol of Vinkeveense plassen behoort tot de mogelijkheden.

Bijzonderheden:
– ruime eengezinswoning voorzien van dakopbouw (2e verdieping);
– achtertuin op het westen;
– gelegen in kindvriendelijke en populaire wijk de Bennigh;
– gelegen op eigen grond;
– 4 (slaap) kamers;
– elektrisch zonnescherm aan achterzijde;
– volledig geïsoleerd, energielabel A;
– woning zeer geschikt voor het plaatsen van een flink aantal zonnepanelen.

—————-*****————–*****———-*****———*****———*****———–******

In a child-friendly neighborhood de Benningh in the charming Ouderkerk aan de Amstel located spacious 5 ROOM SINGLE-FAMILY HOUSE with garden located on the west. The house is well maintained and has been made even more spacious by means of a roof structure.
The house has a living area of approximately 124 m² and a detached storage room of 7 m2, plot area 125 m², built in 1996, delivery in consultation.

Layout
Ground floor:
After the front garden you open the front door, hall with space for the wardrobe, toilet room with sink, meter cupboard and the stairs to the 1st floor. At the end of the hall is the door to the living room. The living room is located at the rear overlooking the garden. The open kitchen is located at the front of the house. The open kitchen is equipped with various built-in appliances such as a 5-burner gas hob, oven/ microwave, dishwasher and a sink. The living room has a sliding door that gives access to the west-facing backyard. The rear of the house is equipped with an electric awning.

The backyard is approximately 9 meters deep and has a detached storage room (7m2). The backyard is conveniently located on the west and has a back entrance.

First floor:
On the 1st floor there are three spacious (bed) rooms; 2 (bed) rooms at the rear and a bedroom at the front of the house. Also a spacious walk-in closet accessible from the landing containing the central heating boiler and washing machine.

The bathroom is located in the middle of the floor and has a bath with shower, washbasin and a second toilet.

Second floor:
You reach the 2nd floor via the fixed staircase. The second floor has a very spacious bedroom and a bathroom with shower, toilet and double sink.
Location:
The Benningh district was developed in 1996/1997 and is located on the river Bullewijk; this house belongs to the first phase of this new residential area. The location in relation to the village center and other shops on Sluisplein is favorable due to access via two bridges.
Public transport is also within walking or cycling distance (including towards Schiphol, Haarlem, Utrecht, Amsterdam) and within a few minutes by car you are on the roads to ring A-10 and A-2. The city is within easy reach and with the regular city bike you can reach Amsterdam in 20 minutes via the beautiful route along the Amstel: in 10 minutes by car you are in Amsterdam and in less than 10 minutes in the city center of Amstelveen. Schiphol Airport is also no more than half an hour away and with public transport even only about 25 minutes (Zuidtangent).

Ouderkerk offers everything one could wish for: schools, a variety of shops, cafes
and restaurants in all (price) classes: from a good simple menu to a star restaurant and everything in between. For sports enthusiasts there are opportunities both indoors and outdoors: various sports clubs, gym, soccer fields, tennis courts, swimming pool, not to mention the popular walking and cycling route De Rondehoep. Recreation at the Ouderkerkplas or, a little further, the Botshol or Vinkeveense lakes is also possible.

Particularities:
– spacious single-family house with roof structure (2nd floor);
– backyard on the west;
– located in the child-friendly and popular Bennigh district;
– located on private land;
– 4 (bed) rooms;
– electric sunshade at the rear;
– fully insulated, energy label A;
– House very suitable for installing a large number of solar panels.

Lees de volledige omschrijving

Kenmerken

Algemeen

Aangeboden sinds
6+ maanden
Status
Verkocht
Aanvaarding
In overleg
Soort woonhuis
Eengezinswoning, tussenwoning
Soort bouw
Bestaande bouw
Bouwjaar
1996
Ligging
Aan rustige weg, in woonwijk

Oppervlakten en inhoud

Wonen
124 m²
Externe bergruimte
6 m²
Perceel
137 m²
Inhoud
402 m³

Indeling

Aantal kamers
5 kamers (4 slaapkamers)
Aantal badkamers
2 badkamers
Badkamervoorzieningen
Dubbele wastafel, inloopdouche, ligbad, toilet, wastafelmeubel
Aantal woonlagen
3
Voorzieningen
Schuifpui

Energie

Energielabel
A
Isolatie
Dakisolatie, dubbel glas, vloerisolatie
Verwarming
Cv ketel
Warm water
Cv ketel

Kadastrale gegevens

Perceelnaam
Ouder-Amstel E 960
Oppervlakte
137 m²
Eigendomssituatie
Volle eigendom
Perceel
ASL00-E-960

Buitenruimte

Tuin
Achtertuin, voortuin
Ligging tuin
West bereikbaar via achterom
Bekijk alle kenmerken