Verhuurd

Maria Austriastraat 730 Amsterdam

Omschrijving

Prachtig licht hoekappartement van circa 86 m² met twee ruime slaapkamers op zeer centrale locatie op IJburg nabij de haven. Dit appartement bevindt zich op de 6 etage en heeft door de hoekligging prachtig uitzicht in meerdere richtingen!

OMGEVING
De woning bevindt zich midden in het kloppende hart van IJburg, tussen het winkelcentrum en de jachthaven in. Binnen een paar minuten lopen zit je op een terras in de haven, op het strand te kijken over het Ijselmeer, of loop je door de winkelstraat van Ijburg voor al je boodschappen. IJburg heeft iedereen wat te bieden. Strandgangers kunnen op de zomerse dagen heerlijk bruin worden bij het nieuwe stadsstrand of buiten sporten in het Diemerpark. Als je daar klaar mee bent kun je nog even een drankje doen of even wat eten op een terrasje in de haven, langs de IJburglaan of op het Steigereiland.
Ook zijn er uitstekende uitvalswegen naar de A1, A2, A9 en A10 en met de tram bent u binnen 15 minuten op Amsterdam CS. Tot slot is er op loopafstand een winkelcentrum met onder anderen twee supermarkten en een gezellige markt op zaterdag. Amsterdam Oost ligt op 15 minuten fietsen, terwijl je de andere kant op binnen 15 minuten in Muiden bent.

Kortom een geweldige plek om te wonen!

INDELING
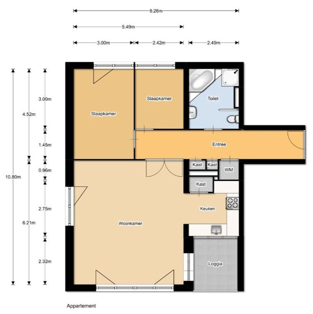
Verzorgde algemene entree, lift en trappenhuis naar de zesde verdieping en ingang van het appartement. Hal met toegang tot de interne berging (met wasmachine ruimte). Vanuit de hal zijn ook de twee ruime slaapkamers aan de koele noordzijde te bereiken. In het midden is een keurige en zeer complete badkamer te vinden met toilet, wastafel, ligbad, douchecabine en handdoekenradiator. Aan het einde van de hal bevindt zich de riante woonkamer, kenmerkend hier is de fantastische lichtinval met ramen/Franse balkons aan weerszijde. De open U-vormige keuken is van alle gemakken voorzien (o.a.; Neff inbouwapparatuur en Boretti afzuigkap). Het ruime balkon is gelegen op het zuidwesten, hiervandaan heb je een mooi uitzicht over IJburg en kun je in de zomer een prachtige zonsondergang aanschouwen.

In de onderbouw van het appartementencomplex bevindt zich nog een praktische en ruime privé berging. Ook heeft het complex nog een gemeenschappelijke fietsenberging naast de entree.

BIJZONDERHEDEN
– Ruim 3-kamer hoekappartement van 86 m² NEN 2580 meetrapport aanwezig;
– Gelegen op de 6e etage, dus prachtig uitzicht;
– De gezellige haven van IJburg op loopafstand;
– Praktische eigen berging van 6 m² aanwezig;
– (lamel)parketvloer door de gehele woning;
– Balkon van 5 m² op het zuidenwesten (deze zit niet in het woonoppervlak);
– Parkeerplaatsen zijn eventueel nog te huur in het complex, informeer naar de mogelijkheden.
– Per direct beschikbaar.
– Delen mag, eventueel met garantstelling indien nodig.

Let op: Huurprijs is exclusief gas/ water, electra, internet, en gemeentelijke belastingen.

—————————————++++++++——————————+++++++++————————

Beautiful light corner apartment of approximately 86 m² with two spacious bedrooms in a very central location on IJburg near the harbor. This apartment is on the 6th floor and has beautiful views in several directions because of the corner location!

SURROUNDINGS
The property is located in the middle of the beating heart of IJburg, between the shopping center and the marina. Within a few minutes walk you sit on a terrace in the harbor, on the beach looking over the IJselmeer, or you walk through the shopping street of Ijburg for all your groceries. IJburg has something to offer for everyone. On sunny days you can get a nice tan on the new city beach, or exercise outside in the Diemerpark. When you’re done with that, you can have a drink or something to eat on a terrace in the harbor, along the IJburglaan or on the Steigereiland.
There are also excellent roads to the A1, A2, A9 and A10 and the tram takes you to Amsterdam CS within 15 minutes. Finally, there is a shopping center within walking distance, including two supermarkets and a lively market on Saturdays. Amsterdam East is 15 minutes by bike, while the other way you are within 15 minutes in Muiden.

Overall a great place to live!

LAYOUT
Well-kept general entrance, elevator and staircase to the sixth floor and entrance to the apartment. Hall with access to the internal storage room (with washing machine). From the hall you can also reach the two spacious bedrooms on the cool north side. In the middle is a neat and very complete bathroom with toilet, sink, bathtub, shower and towel radiator. At the end of the hall is the spacious living room, characteristic here is the fantastic light with windows / French balconies on either side. The open U-shaped kitchen is fully equipped (ao .; Neff built-in appliances and Boretti extractor). The spacious balcony is located on the southwest, from here you have a beautiful view over IJburg and you can see a beautiful sunset in the summer.

There is a practical and spacious private storage room in the basement of the apartment complex. The complex also has a common bicycle shed next to the entrance.

PARTICULARITIES
– Spacious 3-room corner apartment of 86 m² NEN 2580 measurement report available;
– Located on the 6th floor, so beautiful views;
– The pleasant harbor of IJburg within walking distance;
– Practical own storage room of 6 m² available;
– parquet floor throughout the entire house;
– Balcony of 5 m² on the southwest (this is not in the living area);
– Parking spaces can still be rented in the complex, inquire about the possibilities.
– Available immediately.
– Sharing can be allowed

Rental price is excluding utilities, local taxes and internet.

Lees de volledige omschrijving

Kenmerken

Algemeen

Huurovereenkomst
Tijdelijke verhuur
Aangeboden sinds
6+ maanden
Status
Verhuurd
Aanvaarding
Beschikbaar per 05-09-2022
Soort woonhuis
Appartement, bovenwoning
Soort bouw
Bestaande bouw
Bouwjaar
2005
Ligging
Aan park, aan rustige weg, aan vaarwater, aan water, in centrum, in woonwijk, open ligging, vrij uitzicht

Oppervlakten en inhoud

Wonen
86 m²
Gebouwgebonden Buitenruimte
5 m²
Externe bergruimte
6 m²
Perceel
86 m²
Inhoud
276 m³

Indeling

Aantal kamers
3 kamers (2 slaapkamers)
Aantal badkamers
1 badkamer
Badkamervoorzieningen
Inloopdouche, ligbad, toilet, vloerverwarming, wastafel
Aantal woonlagen
1

Energie

Warm water
Stadsverwarming

Kadastrale gegevens

Perceelnaam
Amsterdam AU 181
Oppervlakte
86 m²
Eigendomssituatie
Eigendom belast met erfpacht
Perceel
ASD41-AU-181

Bergruimte

Schuur/berging
Inpandig
Bekijk alle kenmerken

Overige media